RU
+38 0342 76 61 28
Івано-Франківськ
другой город
Увійти
дизайн-студія інтер'єру

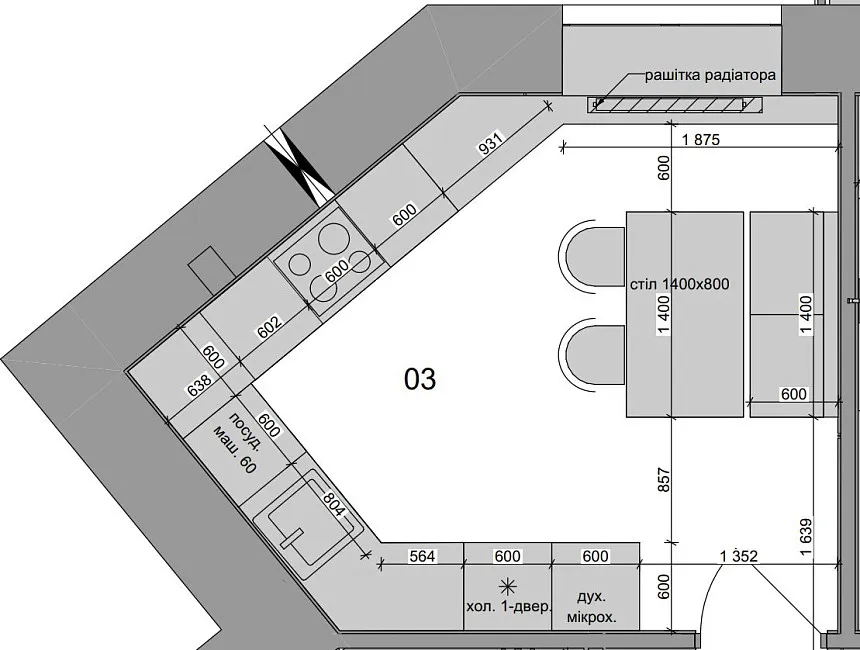
Кухня з п’ятикутною конфігурацією в ЖК «Парковий квартал»

BASE
0.00
-0%
0.00
Економія 0.00
Кухня з нестандартним п’ятикутним плануванням, де кожен сантиметр продуманий до деталей. Мінімалістичний дизайн, спокійна палітра та цілісна композиція створюють стильний і функціональний простір для щоденного життя.
Характеристики

Категорія
Дата
Липень 2025
Стиль
Мансарда
Без мансарди
Площа
14,28 м.кв
Опис
Інтер’єр цієї кімнати — втілення стриманої елегантності та функціональності в нестандартному просторі. Кухня має п’ятикутну конфігурацію, яка стала викликом і водночас можливістю для створення унікального планування.

Завдяки ретельному зонуванню та адаптації меблів під геометрію приміщення, вдалося досягти максимальної ергономіки й естетичного балансу. 

Інтер’єр виконано у спокійних бежево-сірих тонах, що візуально врівноважують складну форму кімнати. Мінімалістичні фасади без ручок підкреслюють сучасний характер простору, а високі шафи забезпечують достатню кількість місця для зберігання. Стільниця та фартух з керамограніту з мармуровим візерунком додають інтер’єру текстурності й вишуканості. Вбудована техніка чорного кольору інтегрована в загальну концепцію без порушення стилістичної цілісності.

Обідня зона — це затишний акцент простору. Стіл з темного каменю, м’які округлі стільці та невеликий диван створюють комфортне місце для щоденних прийомів їжі та невимушеного спілкування. Стильний підвісний світильник з графічною лінією додає інтер’єру індивідуальності.

Ця кімната - чудовий приклад, що навіть складна форма приміщення може стати перевагою при грамотному дизайнерському підході.

Цей проєкт став справжнім викликом через незвичну геометрію простору, але саме вона надихнула на уважну роботу з пропорціями та деталями. Вдалося створити кухню, яка не лише зручна у користуванні, а й візуально цілісна та гармонійна.

На сайті студії Інтер'єр-Ідея представлено виключно роботи наших дизайнерів.
Інтер'єр-Ідея - дизайн інтер'єру в м. Івано-Франківськ, Івано-Франківська область.