RU
+38 0342 76 61 28
Івано-Франківськ
другой город
Увійти
дизайн-студія інтер'єру

Гостьова для молодої пари в ЖК «Андорра»

BASE
0.00
-0%
0.00
Економія 0.00
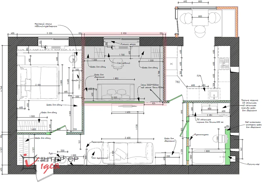
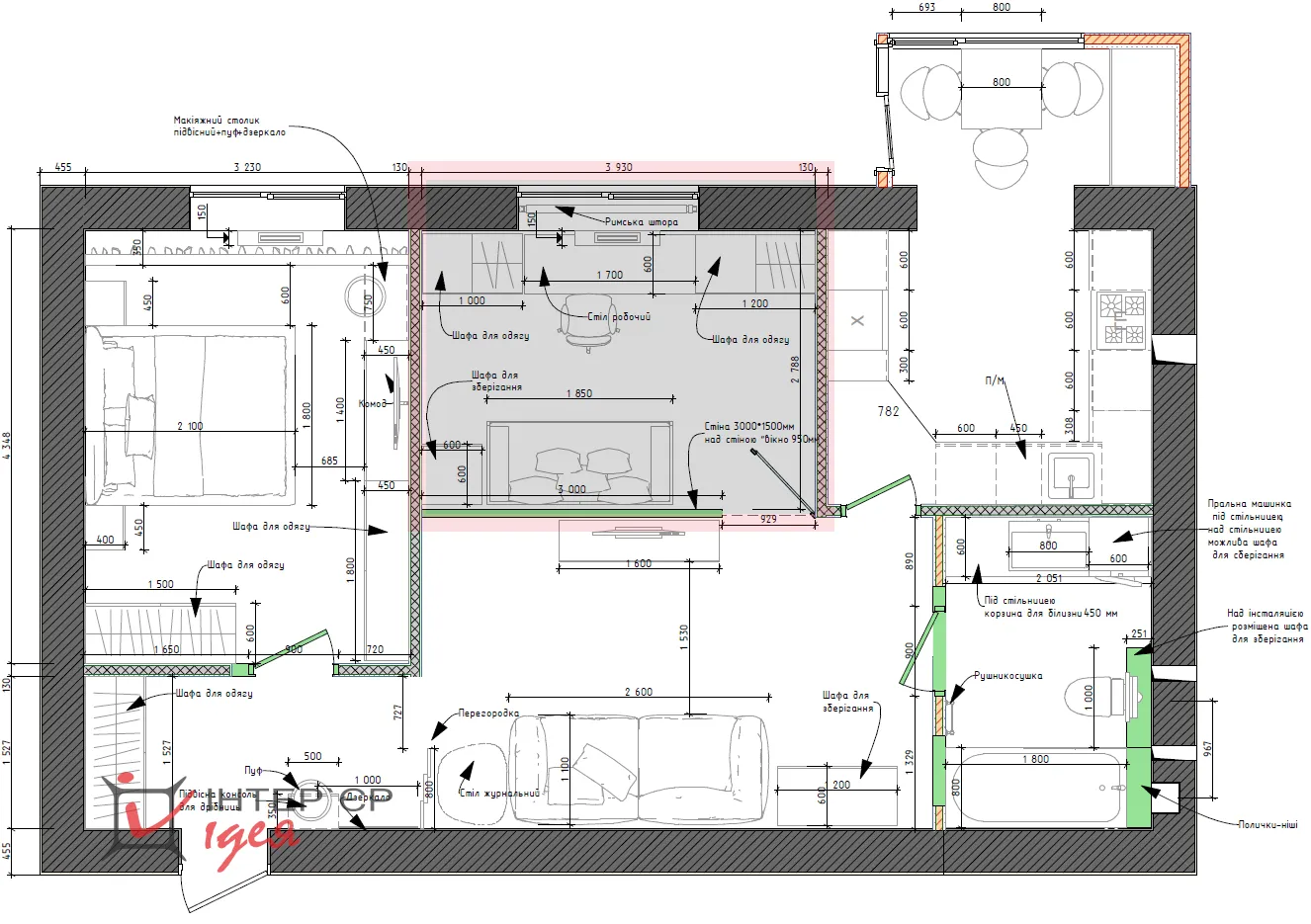
Перед нами стояло завдання організувати простір у двокімнатній квартирі ЖК «Андорра» (м. Черкаси) для молодої пари, яка звернулася з чітким баченням майбутнього житла. Однією з головних вимог було функціональне планування: спальня, майбутня дитяча кімната, вітальня, окрема кухня та об'єднаний санвузол. 
Характеристики

Категорія
Дата
Серпень 2025
Стиль
Мансарда
Без мансарди
Площа
11 м.кв
Опис
Вихідне планування передбачало окремі кімнати, але вузький та довгий коридор забирав цінну площу. Замовники попросили розширити передпокій за рахунок дитячої кімнати, і це стало першим кроком до трансформації простору. Площа всієї квартири становить 67 м², і кожен квадратний метр тут продуманий до деталей.

Особливу увагу приділено організації вітальні, яка не має прямого доступу до природного світла. Щоб уникнути темного замкнутого простору, ми запропонували рішення - перегородка з вікном у стилі інтер'єрного скління, що дозволяє світлу з кабінету проникати у вітальню. Це значно покращило атмосферу кімнати, зробивши її світлішою й візуально просторішою.

На етапі реалізації дитяча кімната була трансформована у робочий кабінет/гостьову кімнату. В інтер’єрі переважають стримані кольори, геометричні акценти та функціональні меблі. Для зберігання використано високі шафи з інтегрованими ручками, що створює відчуття цілісності. Робоча зона чоловіка максимально ергономічна - з якісним кріслом, великим робочим столом, природним освітленням і закритими системами зберігання. Особливу роль відіграє декор - фото родини на стіні додають тепла та індивідуальності. М'який розкладний диван дає змогу використовувати кімнату як гостьову за потреби.

Матеріали обиралися з урахуванням практичності, приємних на дотик поверхонь та спокійного вигляду. Використано матові фасади шаф, римську штору з м’якого текстилю, дерев’яні елементи у підлозі та меблях. Завдяки цьому інтер’єр вийшов не лише зручним у користуванні, а й затишним. 

Інтер’єр оформлений у стилі сучасного мінімалізму з нотками скандинавської простоти й легким відтінком індустріального стилю, який підкреслює скляна перегородка з чорною металевою рамою.
Відгук клієнта
Антон Котюх
Професіонали своєї справи, раджу до співпраці!
Відгук дизайнера
Мені дуже сподобалося, як нам вдалося поєднати функціональність і естетику у цьому невеликому приміщенні. Особливо тішить, що кімната легко адаптується до майбутніх змін у житті замовників.
Інші кімнати в цьому проекті

На сайті студії Інтер'єр-Ідея представлено виключно роботи наших дизайнерів.
Інтер'єр-Ідея - дизайн інтер'єру в м. Івано-Франківськ, Івано-Франківська область.