RU
+38 0342 76 61 28
Івано-Франківськ
другой город
Увійти
дизайн-студія інтер'єру

Лаундж-ресторан і конференц - 2 в 1

BASE
0.00
-0%
0.00
Економія 0.00
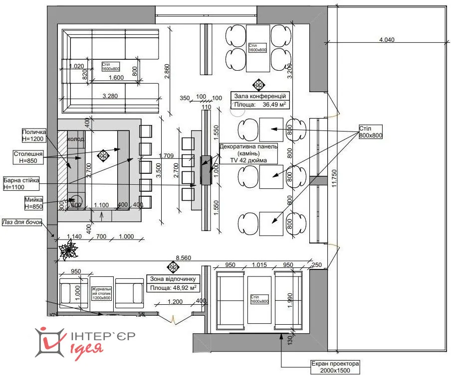
Приміщення знаходиться на 4 поверсі готельно-ресторанного комплексу та являє собою: конференц-залу (36,5 м2) та лаундж-зону (49 м2). Загалом в приміщенні можуть комфортно розміститися до 35 осіб.
Характеристики

Дата
Березень 2024
Мансарда
З мансардою
Площа
85,5 м.кв
Опис
Орендуючи весь поверх, замовник отримує багатофункціональний зал як місце для проведення будь-яких зустрічей, переговорів, конференцій, презентацій та може ефективно поєднувати це з відпочинком, смачними перекусами та випивкою. 

Таке планування та розділення приміщення на 2 зони обумовлене наявністю 7 опорних металевих колон та діагональних перемичок, що зв'язують їх між собою. Вони розділили одне приміщення на 2 частини, тому окремої уваги потребувало оформлення цієї перегородки.

В конференц залі всі столи мають однакову ширину 80 см, щоб при потребі їх можна було об'єднати в 1 фуршетний стіл. 
На одній зі стін передбачено екран для демонстрації з проєктора, а на центральній колонні - 2 телевізора. 

Денне освітлення сприяє продуктивній комунікації учасників заходу, а ввечері можна насолоджуватися прекрасним краєвидом, виходячи на широкий балкон. 
В лаундж-зоні знаходиться бар та декілька м'яких посадкових місць для приватного спілкування або відпочинку невеликою компанією.  

Використані матеріали, меблі та світильники:
- На стінах - декоративна штукатурка світло-сірого кольору,
- Вінілова підлога "SPC The Floor Stone P3002 Velluto" (800x400х6мм) та вінілова підлога "Vitality" (в зоні бару),
- Стеля: гіпсокартон та дерев'яна вагонка фальш-балки від "West-wood" (110х110мм). Над баром - скло, 
- Білі та чорні точкові світильники "AZZARDO",
- Підвісні дерев'яні світильники в лаундж-зоні "S06
Артикул: 66" (54х54х70 см),
- Дерев'яні бра "BLOCK" (35х9х8 см),  
- Стільці "Оліс" від "Wowin", барні стільці «Плато»,
- П-подібний шкіряний диван "Візит" від "DLS" (328х286 см),
- Дивани (190х95 см) і крісла (100х95 см) "СКАЙЛІ".

На сайті студії Інтер'єр-Ідея представлено виключно роботи наших дизайнерів.
Інтер'єр-Ідея - дизайн інтер'єру в м. Івано-Франківськ, Івано-Франківська область.